2024年丽水市第二人民医院档案密集架询价公告

2024-10-2293421

 丽水市第二人民医院拟档案室密集架项目进行询价采购,欢迎有投标意向且符合资质要求的供应商前来参加。

一、项目名称:

档案室密集架采购项目

二、项目概况

1.项目需求:本次采购7层高档案密集架约80立方,单层承重不低于50公斤。单价不高于1000元/立方,报价包含所有材料及费用包括但不限于轨道、人工费、运费税费等。密集架横向放置病历,病历袋尺寸约为25cm*32cm。

2.项目预算:80000元(人民币)

三、资格要求

1.满足《中华人民共和国政府采购法》第二十二条规定;

2.落实政府采购政策需满足的资格要求:本项目专门面向中小微企业采购,供应商须提供有效的《中小企业声明函》。

3.响应单位必须为政采云入围商家。

4. 未被列入失信被执行人、重大税收违法失信主体,未被列入政府采购严重违法失信行为记录名单。

三、报价材料

1.公司营业执照复印件;

2.《中小企业声明函》;

3.报价单(格式自拟);

4.设计图纸;

5.投标单位认为需要提供的其他材料(服务承诺和业绩证明等)

四、其他说明

1. 我院自行组织评标小组,根据投标者的报价、资信、供货条件、售后服务等方面综合评定后确定中标单位。评标小组不专门组织答疑会,不向落标方解释落标原因,不退还投标文件。评标结果另行通知。

2. 联系方式:

    档案室梅主任           13666551263

    采购中心潘老师     0578-2299928

    地址:浙江省丽水市莲都区北环路69号丽水市第二人民医院行政楼311采购中心

    邮编:323000

3. 投标人应在2024年11月1日17:00(北京时间)前将投标文件邮寄或送至丽水市第二人民医院采购中心。

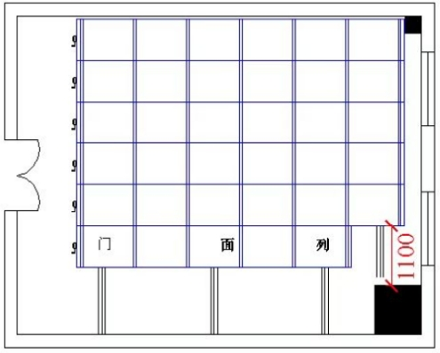
五、参考图纸

       图纸仅供参考,具体尺寸以实地测量为准,具体摆放方案自行拟定。


图片1.png

图片2.png

图片3.png


地址:浙江省丽水市莲都区北环路69号

电话:0578-2299912

信箱:2427332664@qq.com

传真:0578-2299913

  • 微信服务号

  • 二医那些事儿

  • 支付宝服务窗

Copyright © 2011-2024 丽水市第二人民医院All rights reserved 网站备案:浙ICP备13029871号-1 技术支持:华顶网络